WOHNHAUS
Ref : KH 241
Das Objekt befindet sich in einem wenig befahrenen Ring in Walldürn. Über 3 Fußgängerwege ist der Straßenring zusätzlich zu erreichen. Die Wohnlage ist sehr gut (nur Ein- oder Zweifamilienhäuser im näheren Umfeld). Die Innenstadt von Walldürn ist zu Fuß ca. 10 min entfernt. Walldürn, im Neckar-Odenwald-Kreis, ist eine Wallfahrtsstadt mit ca. 10.000 Einwohnern.
Die Infrastruktur ist gut. Es gibt eine Grund- und Hauptschule, weiterführenden Schulen, verschiedene Einkaufsmöglichkeiten, Industrie und verschiedene Freizeit- und Sportmöglichkeiten.
Das Wohnhaus ist ein Fertighaus in Holzständerbauweise (Firma Weber). Der Keller besteht aus massiven, aus Beton gegossenen Wänden. Das komplette Wohnhaus ist sehr gepflegt und besticht durch die angelegte Terrasse mit idyllischem Garten ringsherum.
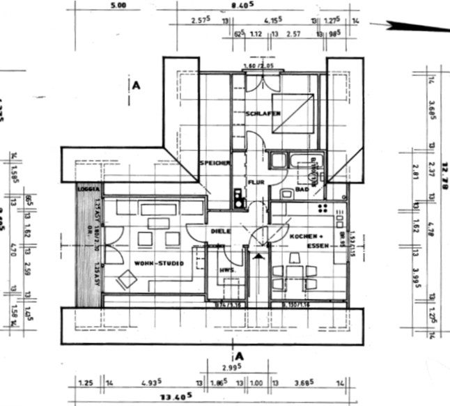
Das Erdgeschoss verfügt über:
- Esszimmer mit angrenzender Küche inkl. Ausgang in den Garten
- Großes Badezimmer
- Gäste-WC
- Arbeitszimmer
- Schlafzimmer inkl. Ausgang auf die Terrasse
- Wohnzimmer mit offenem Kamin inkl. Ausgang auf die Terrasse
Im Dachgeschoss befinden sich 3 weitere Zimmer, eine Küche und ein Bad.
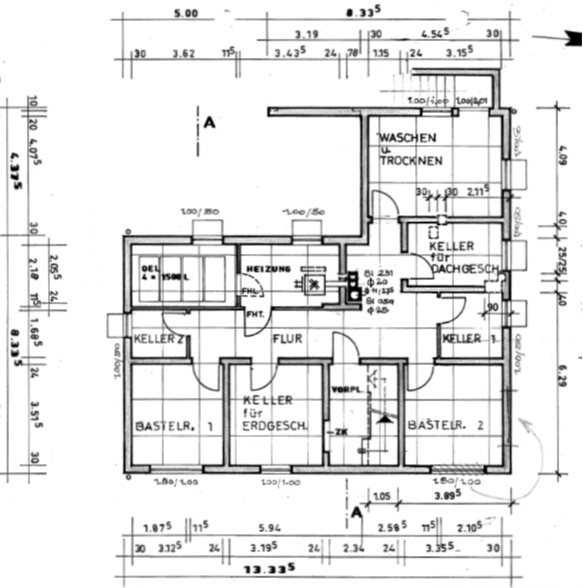
Der Keller verfügt über 2 weitere Wohnräume (aktuell als Werkstatt und Bügelzimmer ausgestattet), 3 Lagerräume, einen Installationsraum (Heizung), einen Öltankraum und einen Hauswirtschaftsraum mit Ausgang in den Garten (Treppe).
Die Wohnfläche ist folgendermaßen in den Geschossen aufgeteilt:
Keller: ca. 22 m² Wohnfläche
EG: ca. 130 m² Wohnfläche
DG: ca. 70 m² Wohnfläche
Zum Wohnhaus gehört die Doppelgarage, die über einen elektrischen Torantrieb verfügt.
Geschosse: Keller, Vollgeschoss im EG, Dachgeschoss
Wohnfläche: ca. 222 m²
Baujahr Gebäude: 1980
Grundstück: 1.134 m²
Das angrenzende Grundstück mit einer Größe von 380m² wurde vom Eigentümer gepachtet (von der Stadt Walldürn). Der Zugang befindet sich im Garten (siehe blauer Pfeil im Bild).
Heizung: Ölzentralheizung
Energiedaten/ Energieausweis:
- Energieausweis: Energieverbrauchsausweis
- Baujahr (gemäß Energieausweis): 1980
- Baujahr Wärmeerzeuger 2006
- Wesentlicher Energieträger: Heizöl
- Endenergieverbrauch: 169 kWh/(m²*a)
- Energieeffizienzklasse: F
Energieträger Warmwasser: Heizöl
Kaufpreis: Der Kaufpreis liegt auf einer Verhandlungsbasis von 425.000 EUR.
Maklercourtage: 4,17% Maklercourtage inkl. MwSt. des Kaufpreises für den Käufer
Weitere Infos folgen in Kürze!
Haben wir Ihr Interesse geweckt? Dann melden Sie sich gerne bei uns per Email über das unten stehende Kontaktformular. Wir werden uns dann umgehend bei Ihnen melden.
Bitte beachten Sie, dass Sie uns Ihren Vor- und Zunamen, Ihre vollständige Adresse und Ihre Telefonnummer im Kontaktformular angeben. Ansonsten kann keine Bearbeitung unsererseits erfolgen. Vielen Dank.
HINWEIS:
Wir weisen höflich darauf hin, dass die in der Onlineanzeige gemachten Angaben ausschließlich auf den uns vom Verkäufer überlassenen Dokumente & Daten basieren. Wir übernehmen keine Haftung für die Richtigkeit & Vollständigkeit dieser Daten.
IHR ANSPRECHPARTNER

Rainer-Peter Ehler
Telefon: 06282-7627
Mobil: 0173-9528591
Fax: 06282-7628






































