WOHNHAUS
Ref : KH 243
Das große und gepflegte Wohnhaus mit Garten und Garage befindet sich in einer zentralen Lage in Walldürn. Zu Fuß sind es nur wenige Minuten in die Innenstadt. Ein Bäcker, Metzger und Lebensmittelladen sowie ein Kindergarten und Schulen sind in unmittelbarer Nähe.
Das Wohnhaus ist massiv gebaut. Das komplette Wohnhaus ist gepflegt, geeignet für barrierefreies Wohnen im EG und besticht durch die angelegte Terrasse mit Zugang zu einem großen Garten.
Das Wohnhaus ist barrierefrei im Erdgeschoss (Zugang Eingangstüre, Badezimmer, Zugang Garten/Terrasse) eingerichtet.
Das Erdgeschoss verfügt über:
- Diele
- Wohn- und Esszimmer mit angrenzender Küche (es ist möglich, den Bereich zur Küche komplett offen zu gestalten)
- Großes Badezimmer, welches 2015 komplett saniert wurde
- Gäste-WC
- Speisekammer / Abstellraum
- Schlafzimmer
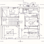
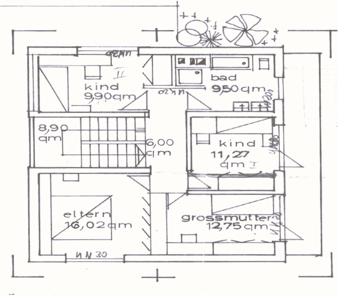
Im Obergeschoss befinden sich 4 Zimmer und ein großzügiges Bad.
Das Dachgeschoss ist nicht ausgebaut.
Der Keller verfügt über 2 weitere Wohnräume, 2 kleinere Zimmer, die zu Dusche und WC ausgebaut werden könnten. Des Weiteren befinden sich der Installationsraum (Heizung), ein Hauswirtschaftsraum, 2 Lagerräume im Keller. Ein separater Treppenaufgang zur Terrasse ist vorhanden.
Zum Wohnhaus gehört die Garage. Zwischen Garage und Eingang befindet sich ein Tor, welches in den Garten führt.
Geschosse: Kellergeschoss, Erdgeschoss, Obergeschoss
Wohnfläche: ca. 250 m²
Baujahr Gebäude: 1969 / Baujahr Anbau: 1981
Bauliche Maßnahmen und Erneuerungen:
- 1998 Sanierung des Bades (OG)
- 2010 Erneuerung der Glasfront m Treppenhaus
- 2011 Fensteraustausch + Dämmung Fassade Nord + Neuanstrich Fassade
- 2013 Kellertüre + Kellerfenster
- 2013 Erweiterung der Terrasse und barrierefreier Zugang zum Garten
- 2015 komplette Badsanierung (EG)
- 2016 Barrierefreier Zugang zum Haus
- 2022 Einzäunung Hofeinfahrt
Grundstück: 1.204 m²
Heizung: Gaszentralheizung
Energiedaten/ Energieausweis:
- Energieausweis: Energiebedarfsausweis
- Baujahr: 1969 / Anbau 1981
- Baujahr Wärmeerzeuger: 1994
- Wesentlicher Energieträger: Erdgas E
- Endenergiebedarf: 311,5 kWh/(m²*a)
- Energieeffizienzklasse: H
Energieträger Warmwasser: Erdgas E
Kaufpreis: Der Kaufpreis liegt auf einer Verhandlungsbasis von 380.000 EUR.
Maklercourtage: 4,17% Maklercourtage inkl. MwSt. des Kaufpreises für den Käufer
Haben wir Ihr Interesse geweckt? Dann melden Sie sich gerne bei uns per Email über das unten stehende Kontaktformular. Wir werden uns dann umgehend bei Ihnen melden.
Bitte beachten Sie, dass Sie uns Ihren Vor- und Zunamen, Ihre vollständige Adresse und Ihre Telefonnummer im Kontaktformular angeben. Ansonsten kann keine Bearbeitung unsererseits erfolgen. Vielen Dank.
HINWEIS:
Wir weisen höflich darauf hin, dass die in der Onlineanzeige gemachten Angaben ausschließlich auf den uns vom Verkäufer überlassenen Dokumenten & Daten basieren. Wir übernehmen keine Haftung für die Richtigkeit & Vollständigkeit dieser Daten.
IHR ANSPRECHPARTNER

Rainer-Peter Ehler
Telefon: 06282-7627
Mobil: 0173-9528591
Fax: 06282-7628


































